Beschrijving
Plan zelf online een bezichtiging! Kijk op mijn website of vraag via Funda een bezichtiging aan.
Op zoek naar een heerlijke gezinswoning in een rustige en veilige buurt? Dan is de woning aan de Nachtegaalstraat 10 in Wijchen Noord mogelijk wat je zoekt. Dit huis biedt je alles wat je nodig hebt: van een ruime en lichte woonkamer tot een fijne, vrij gelegen achtertuin. En dat allemaal op een steenworp afstand van alle voorzieningen. Kom snel kijken en laat je verrassen door dit fijne huis!
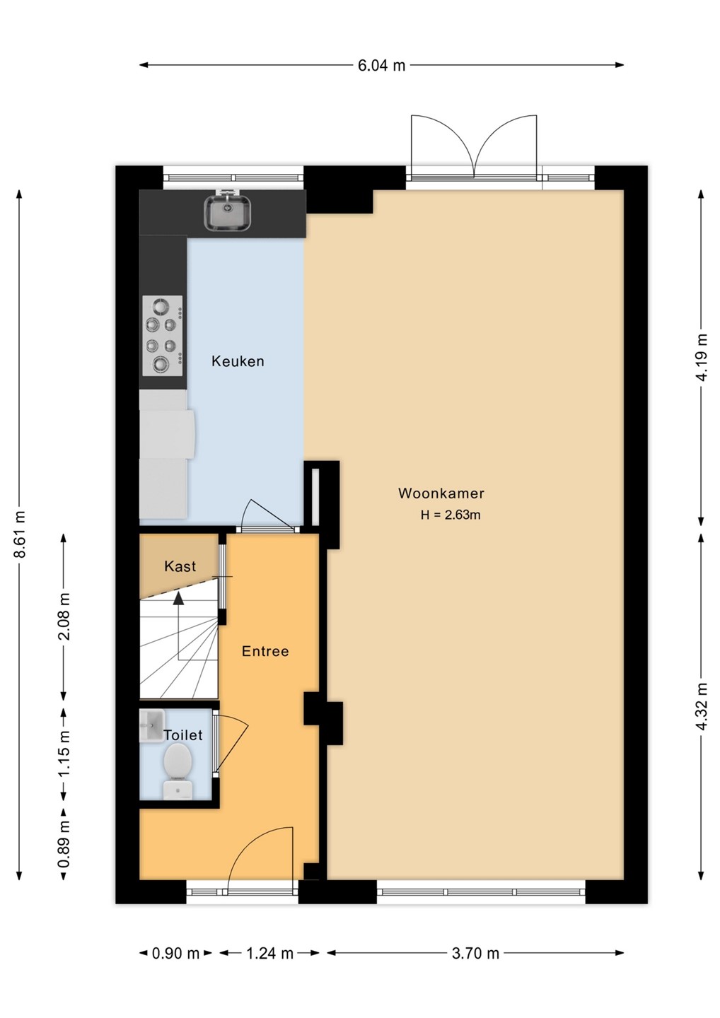
BEGANE GROND
Stap via de ruime hal binnen in de keuken. De halfopen keuken staat in directe verbinding met de eethoek en biedt plek voor een ruim opgezette keukenopstelling. Aansluitend vind je de lichte en ruime woonkamer, waar je dankzij de openslaande deuren direct contact hebt met de achtertuin. Hier geniet je van de ochtendzon terwijl je de dag rustig begint met een kop koffie. De woonkamer is groot genoeg voor een gezellige zithoek en een grote eettafel. In de hal zijn een handige trapkast en de toiletruimte.
EERSTE VERDIEPING
Op de eerste verdieping heb je drie ruime slaapkamers. Ideaal voor een gezin met kinderen of als je een thuiskantoor nodig hebt. Voorheen waren het vier kamers, dus mocht je een extra slaapkamer nodig hebben, kun je dat eenvoudig regelen door een wand terug te plaatsen. De badkamer is netjes en ruim, voorzien van een douche, ligbad, badkamermeubel en toilet. Alles wat je nodig hebt voor een frisse start van de dag.
ZOLDER
De zolder biedt nog meer mogelijkheden. Deze open ruimte kan eenvoudig worden omgebouwd tot een vierde of vijfde slaapkamer of een hobbyruimte. Met een beetje creativiteit maak je hier een fantastische plek van. Hier zijn ook de witgoedaansluitingen en de CV-ketel.
TUIN
De achtertuin is een heerlijke plek om te ontspannen. Dankzij de oostelijke ligging geniet je hier van met name de ochtend- en middagzon. De onderhoudsarme tuin is voorzien van een ruime schuur over de gehele breedte, ideaal voor het opbergen van fietsen en tuingereedschap. En met weinig tot geen inkijk, geniet je in je tuin van je privacy.
OMGEVING
De Nachtegaalstraat ligt in een fijne woonwijk met alle voorzieningen binnen handbereik. Scholen, winkels en openbaar vervoer zijn op loopafstand en de snelweg is gemakkelijk bereikbaar. Ideaal voor mensen die op zoek zijn naar een rustige plek met alle gemakken van het dorp binnen handbereik.
Kom snel kijken naar deze instapklare woning en ervaar zelf de ruimte en rust die dit huis te bieden heeft. Maak een afspraak en wie weet wordt de Nachtegaalstraat 10 jouw nieuwe thuis!