Beschrijving
Vraag via Funda of mijn site een bezichtiging aan en plan zelf online een afspraak.
DROOMHUIS IN EEN RUSTIGE OMGEVING
Stel je voor: je eigen twee-onder-een-kapwoning, gebouwd in 2003, met een heerlijke rustige ligging en een vrij gelegen tuin op het zuiden. Dit huis aan De Geer 1007 is een plek waar je écht thuis kunt komen. Met een woonoppervlakte van 105 m² en een perceel van 242 m² biedt deze woning verrassend veel ruimte. Door de slimme indeling voelt het huis groter aan dan je zou verwachten. De goede isolatie zorgt ervoor dat je in de winter kunt genieten van lage stookkosten en in de zomer van een heerlijk koel huis. Kom je snel een kijkje nemen?
BEGANE GROND
Bij binnenkomst voel je direct de warmte en gezelligheid die deze woning uitstraalt. De woonkamer en keuken worden op een stijlvolle manier gescheiden door een luxe doorkijkhaard. Perfect voor sfeervolle avonden met vrienden of familie. De begane grond is voorzien van vloerverwarming, wat zorgt voor extra comfort. De luxe keuken is en praktisch ingericht, ideaal voor het bereiden van heerlijke maaltijden. Vanuit de woonkamer stap je zo de verzorgde achtertuin in, waar je kunt ontspannen onder de overkapping of genieten van de jacuzzi. Het tuinhuis is al voorbereid voor een complete wellness-ervaring.
Via de tuin is de aparte salonruimte bereikbaar: een volledig afgewerkte praktijk met eigen entree, isolatie, vloerverwarming, airco en water-/stroomvoorziening. Deze ruimte heeft een officiële vergunning (aantoonbaar) en is perfect als kapsalon, schoonheidssalon of kantoor aan huis- en kan desgewenst eenvoudig bij de woonruimte worden betrokken.
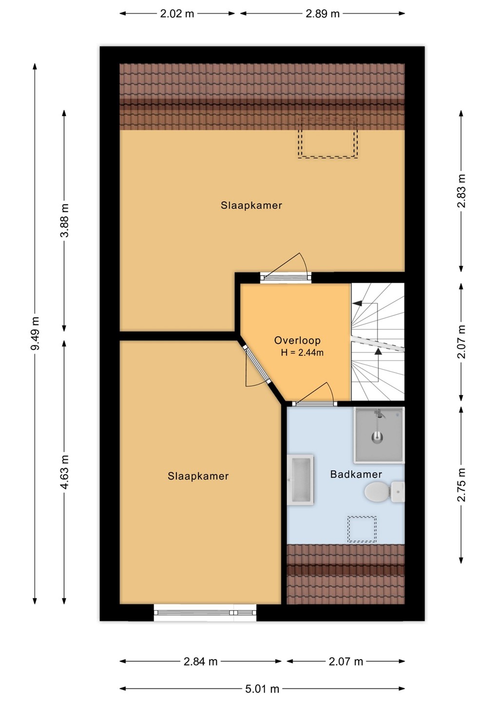
EERSTE VERDIEPING
Op de eerste verdieping vind je twee ruime slaapkamers. De masterbedroom is voorzien van handige inbouwkasten, waardoor je altijd voldoende opbergruimte hebt. Een van de kamers is eenvoudig te splitsen zodat je een derde kamer kunt maken, mocht je die nodig hebben. De badkamer is netjes en kan een upgrade gebruiken, maar is zo uiteraard ook direct te gebruiken.
TWEEDE VERDIEPING
De tweede verdieping biedt nog meer mogelijkheden. Deze open ruimte kan worden ingericht als extra slaapkamer, kantoor of hobbyruimte. De mogelijkheden genoeg.
DE OMGEVING
Gelegen in een rustige buurt, biedt deze woning aan De Geer 1007 een perfecte balans tussen rust en bereikbaarheid. In de directe omgeving vind je diverse voorzieningen zoals scholen, winkels en sportfaciliteiten. Bovendien ben je binnen no-time in het bruisende centrum, waar je kunt genieten van gezellige cafés en restaurants. De goede verbindingen met het openbaar vervoer en de nabijheid van uitvalswegen maken dit een ideale locatie voor zowel gezinnen als forenzen.
Ben je nieuwsgierig geworden naar deze prachtige woning? Neem dan snel contact met ons op voor een bezichtiging. Dit huis moet je met eigen ogen zien om de fijne sfeer, de charme en mogelijkheden te ervaren.