Beschrijving
Bezichtiging? Vraag via Funda of mijn site een bezichtiging aan en plan zelf een afspraak.
In een rustige woonwijk, aan een doodlopende straat, ligt deze goed onderhouden eindwoning uit 1987. Met een woonoppervlakte van 100 m2, een moderne keuken en badkamer, en een heerlijke tuin zonder inkijk, biedt dit huis alles wat je nodig hebt. Ideaal voor jonge gezinnen dankzij de nabijheid van scholen, speelveldjes en speeltuinen.
BEGANE GROND
Bij binnenkomst ervaar je direct de ruimte dankzij de verwijderde muur in de woonkamer. De moderne keuken is van alle gemakken voorzien. De woonkamer is bijzonder licht door de grote ramen. Vanuit de woonkamer en keuken loop je de achtertuin in. Aan huis is een veranda gemaakt, waardoor je ook buiten kunt zitten als het wat minder goed weer is. De achtertuin ligt op het noordwesten en biedt veel privacy en zon.
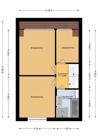
EERSTE VERDIEPING
Op de eerste verdieping vind je drie slaapkamers, twee grote en een kleinere. Deze verdieping is recent geheel opnieuw afgewerkt, na de plaatsing van de dakkapel. De moderne badkamer is stijlvol afgewerkt en praktisch ingedeeld.
TWEEDE VERDIEPING
De tweede verdieping herbergt de vierde slaapkamer. Deze ruimte is flexibel te gebruiken als kantoor of hobbyruimte. Op de overloop is plek voor je wasmachine en hier vind je de CV-ketel.
SAMENVATTEND:
- Eindwoning uit 1987
- Woonoppervlakte 100 m2
- 5 kamers, waarvan 4 slaapkamers
- Moderne keuken, badkamer en toiletruimte
- Volledig geïsoleerd, HR-glas
- Cv-ketel en gedeeltelijke vloerverwarming
- Achtertuin van 72 m2 op het noordwesten, mét overkapping
- Kindvriendelijke buurt, nabij school en speeltuin
- Openbaar parkeren voor de deur
Benieuwd naar deze fijne woning? Neem contact met ons op voor een bezichtiging en ervaar zelf het comfort en de ruimte van deze ideale gezinswoning.