Beschrijving
De verkoper van dit huis doet, tenzij we eerder een koper vinden, op zaterdag 4 oktober mee aan de NVM Open Huizendag. Je kunt dan zonder afspraak binnenlopen om het huis te bekijken. Open huis is van 11.00u.-15.00u. Kun je niet? Maak dan een afspraak voor een bezichtiging.
Op zoek naar een huis dat nét even anders is dan de rest? Stop met zoeken! Dit woonhuis aan een rustige straat biedt alles wat je nodig hebt en meer. Met een woonoppervlakte van maar liefst 208 m², vijf slaapkamers en een speelse indeling, is dit de perfecte plek voor een groot gezin of mensen die van ruimte houden. De ligging is ideaal: in een groene, kindvriendelijke wijk met scholen, natuurgebieden en uitvalswegen binnen handbereik. En met de 12 zonnepanelen op het dak ben je ook nog eens duurzaam bezig. Kom snel kijken en ontdek zelf de ruimte in dit huis!
Indeling
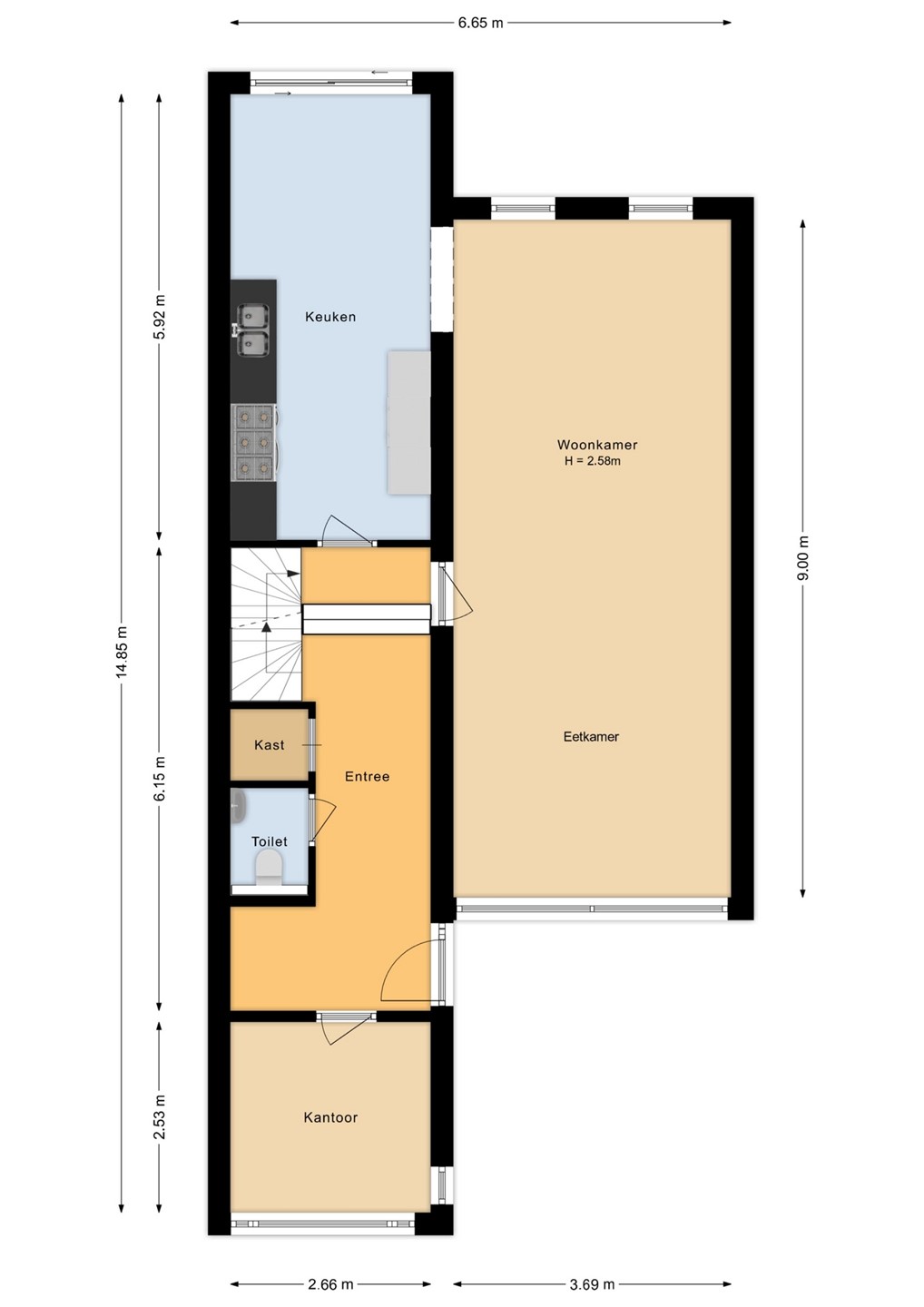
Begane grond
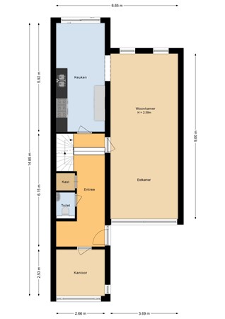
Bij binnenkomst in de keuken en woonkamer valt direct de ruime opzet op. Het vele licht dat door de grote ramen naar binnen komt, versterkt het ruimtelijke gevoel. De leefkeuken is een fijne ruimte om in te koken en zitten. Via de schuifpui loop je naar buiten waar, als een verlengstuk van de eetkamer, een terras is gemaakt waar je heerlijk kunt zitten en eten met het hele gezin. De keuken heeft verder alle benodigde inbouwapparatuur. Handig: de vaatwasser is op hoogte gemaakt.
De woonkamer heeft een warme uitstraling dankzij het eiken parket en biedt genoeg ruimte voor gezellige avonden met familie en vrienden. Het bijzondere aan deze ruimte is de hoge vide, aan de voorzijde.
Aan de voorkant van het huis, direct bij binnenkomst links, is een handige werkkamer. Hier zit je rustig en apart van de woonkamer en keuken.
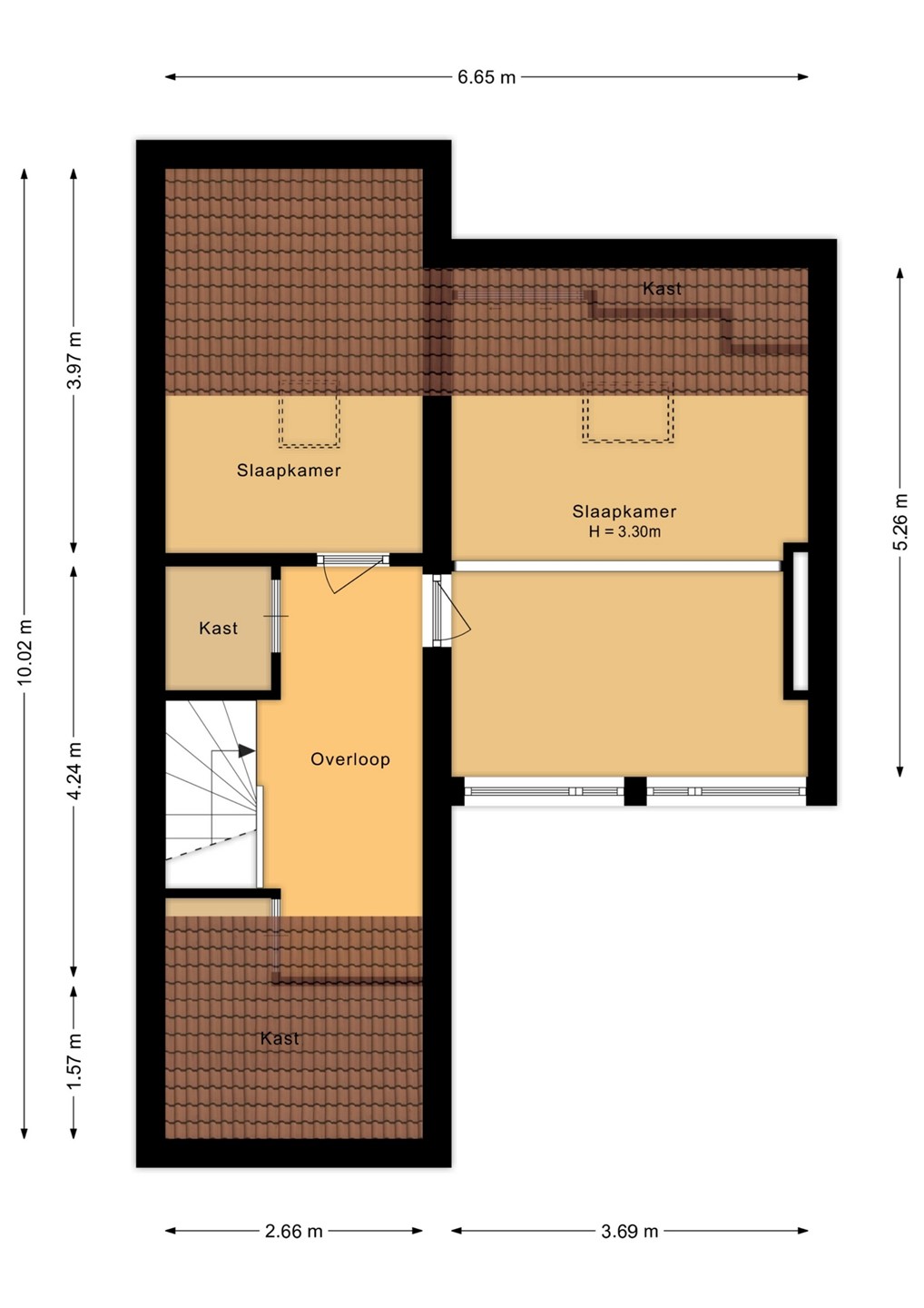
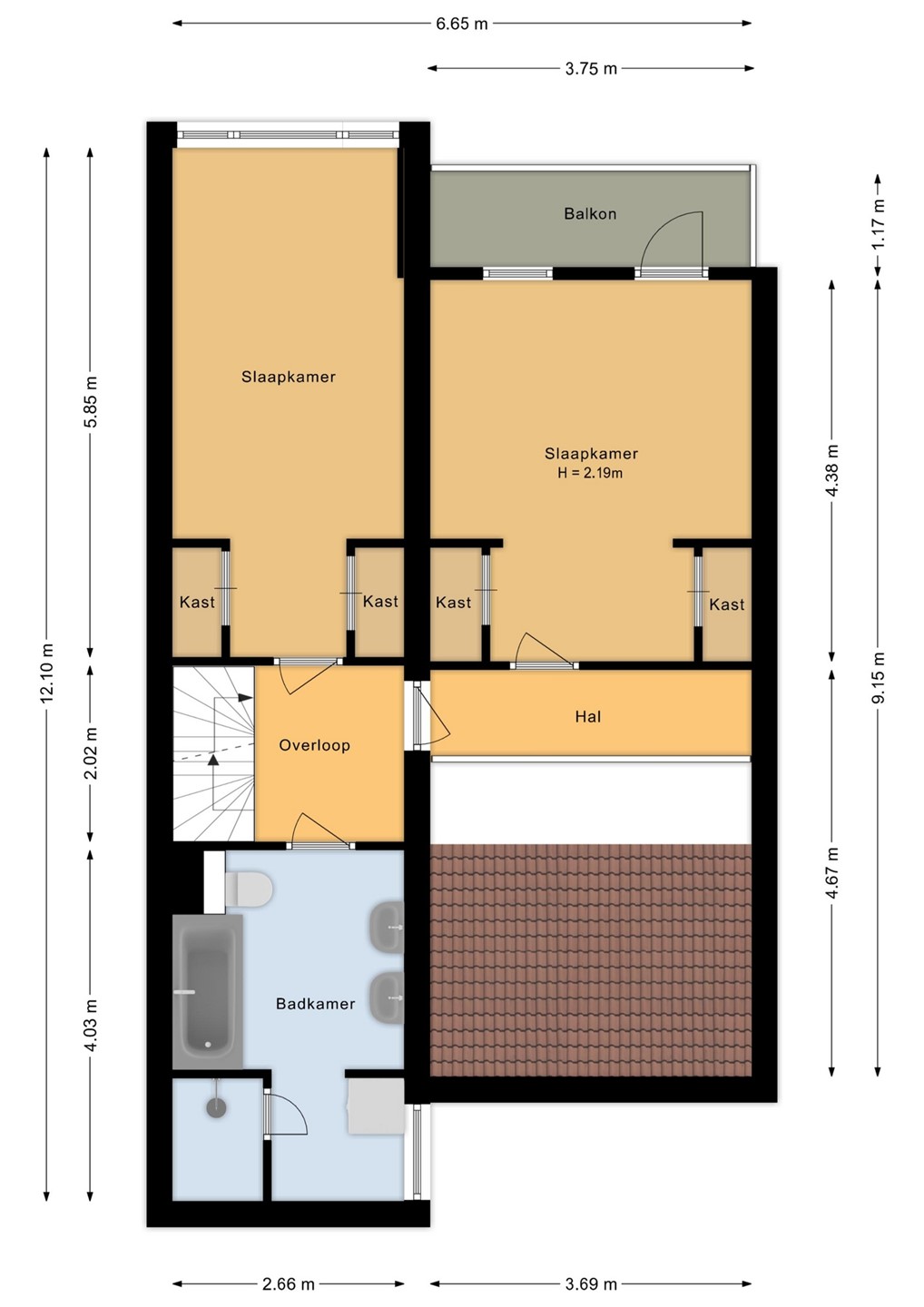
Eerste verdieping
Op de eerste verdieping vind je twee slaapkamers, beide voorzien van laminaat. De kamers zijn licht en ruim, perfect voor een ouderslaapkamer, kinderkamer of logeerkamer. De grote badkamer is praktisch ingericht, met alles wat je nodig hebt voor een ontspannen start van de dag: een ligbad, douche, toilet en een dubbele wastafel. De vide geeft deze verdieping een speels karakter.
Tweede verdieping
De tweede verdieping herbergt nog eens twee slaapkamers, ideaal voor tieners of bijvoorbeeld als kantoorruimte.
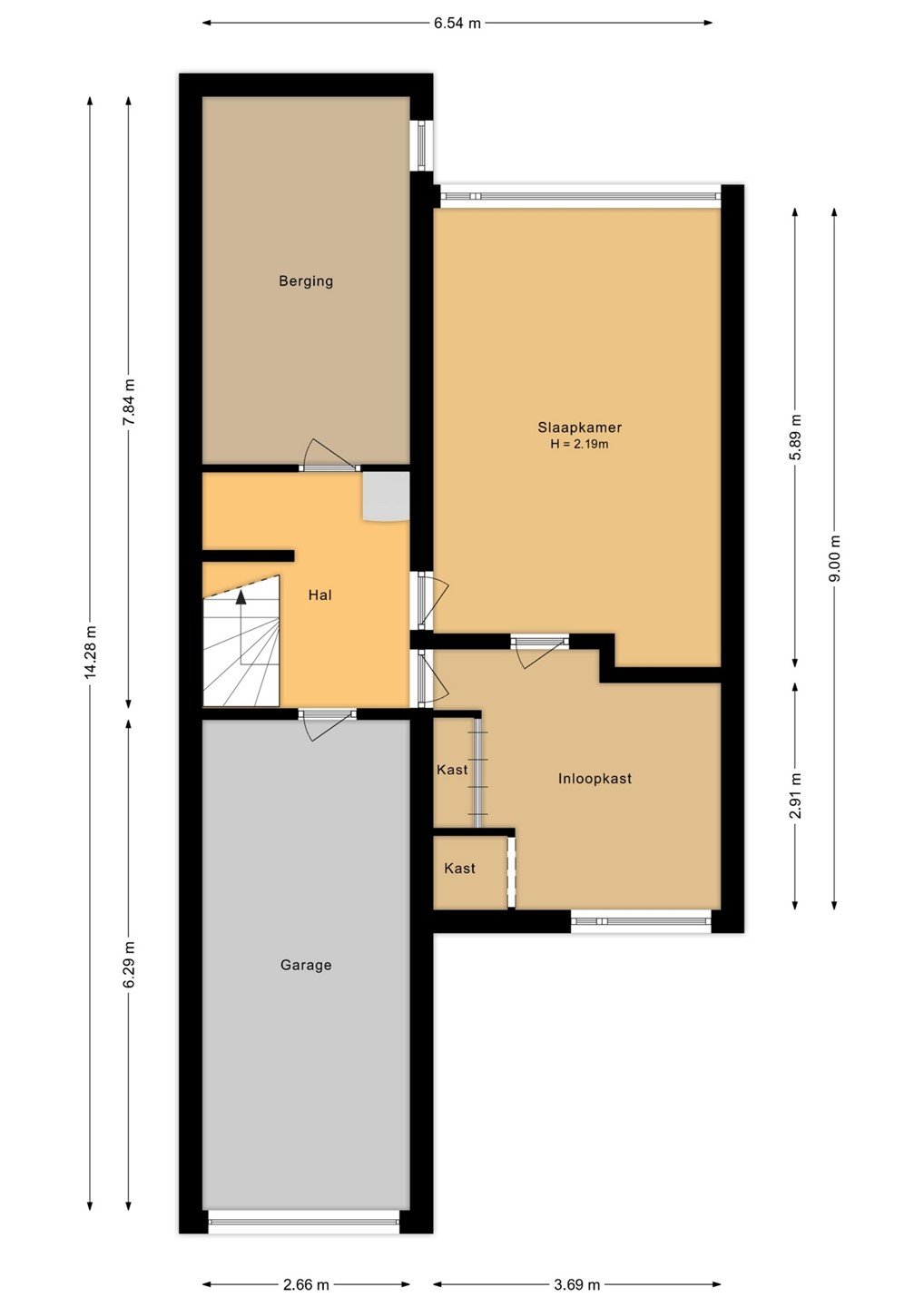
Souterrain
Het souterrain is een echte verrassing: met verschillende ruimtes, stahoogte en een groot raam in de kamer aan de achterzijde, is dit een multifunctionele ruimte. Of je nu een plek zoekt om muziek te maken, een speelplek voor de kinderen of een bedrijfsruimte, hier kan het allemaal. Hier vind je ook de inpandige garage.
Tuin en buitenruimte
De tuin is een waar genot, met verschillende terrassen waar je altijd een plekje in de zon of schaduw kunt vinden. Mede door de overkapping zit je hier een groot deel van het jaar heerlijk buiten. En met de achterom is de tuin ook nog eens makkelijk bereikbaar. Aan de voorzijde biedt een eigen oprit plaats aan twee auto's.
Omgeving
De woning ligt in een kindvriendelijke wijk met veel speelweides en groen. Natuurgebieden zijn op loopafstand, ideaal voor een zondagse wandeling of een sportieve fietstocht. De nabijheid van de snelweg en openbaar vervoer maken de locatie ook ideaal voor forenzen. Scholen en winkels zijn in de buurt, waardoor je alles bij de hand hebt.
Ben je nieuwsgierig geworden naar deze unieke woning? Maak dan snel een afspraak voor een bezichtiging en laat je verrassen door de ruimte en mogelijkheden die dit huis biedt!