Beschrijving
Plan zelf online een bezichtiging! Kijk op mijn website of vraag via Funda een bezichtiging aan.
Op zoek naar een instapklaar huis en een plek waar je je meteen thuis voelt? Dan is Wedesteinbroek 1433 in Nijmegen precies wat je zoekt. Deze sfeervolle en ruime eengezinswoning biedt alles wat je nodig hebt voor comfortabel wonen. Met 4 ruime slaapkamers, een moderne badkamer, een heerlijke veranda met glazen schuifwand en een veelzijdig tuinhuis, is dit huis een perfecte keuze voor gezinnen. De woning is bovendien energiezuinig dankzij volledige isolatie en zonnepanelen. Kom snel een kijkje nemen en ervaar zelf de fijne sfeer van dit huis!
BEGANE GROND
Stap binnen in een ruime woonkamer, waar de vloerverwarming zorgt voor een aangename warmte, samen met de airco, die ook voor verkoeling zorgt. Een grote schuifpui verbindt de kamer met de veranda en tuin. De glazen schuifwand in de veranda maakt het mogelijk om het hele jaar door van je tuin te genieten. Of je nu houdt van een barbecue in de zomer of een warme chocolademelk in de winter, deze veranda is de perfecte plek. Aan de voorzijde van het huis is de halfopen keuken, die van alle gemakken is voorzien. Samen met het eetgedeelte is er voldoende ruimte voor het hele gezin om samen te koken en te eten. Aansluitend vind je een handige bijkeuken/berging.
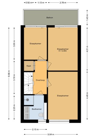
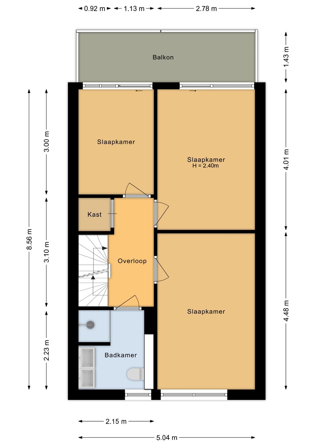
EERSTE VERDIEPING
Op de eerste verdieping zijn drie ruime slaapkamers en een moderne badkamer. De badkamer is recent vernieuwd en voorzien van een inloopdouche, toilet en een stijlvol wastafelmeubel. De slaapkamers zijn lekker groot en licht, ideaal voor kinderen of als thuiskantoor.
TWEEDE VERDIEPING
De tweede verdieping biedt nog een slaapkamer, perfect voor gasten of als hobbyruimte. Hier vind je ook extra bergruimte, zodat je al je spullen netjes kunt opbergen.
BUITENRUIMTE
De achtertuin op het zuidwesten is een plek waar je heerlijk kunt ontspannen. Het tuinhuis biedt extra mogelijkheden: denk aan een buitenkeuken, een werkplek of gewoon een plek om te relaxen. Dankzij de carport kom je altijd droog binnen en is parkeren op eigen terrein geen probleem.
DE OMGEVING
Gelegen in een rustige woonwijk in Nijmegen, biedt deze woning de perfecte balans tussen rust, natuur en bereikbaarheid. Met scholen, winkels en openbaar vervoer in de buurt, heb je alles wat je nodig hebt binnen handbereik. De groene omgeving nodigt uit tot wandelen en spelen, ideaal voor gezinnen met kinderen.
Kortom, Wedesteinbroek 1433 is een heerlijk gezinshuis met veel ruimte en comfort. Kom snel langs voor een bezichtiging en ontdek zelf deze woning!