Beschrijving
Plan zelf online een bezichtiging! Kijk op mijn website (bij de pagina van de woning) of vraag via Funda een bezichtiging aan.
Ruim, comfortabel en een fijne ligging komen hier mooi samen. Deze moderne tussenwoning aan Het Hoge Rot 58 in Hernen is gebouwd in 2017, goed geïsoleerd en helemaal klaar voor de volgende stap. Je woont hier in een rustige en kindvriendelijke buurt met alleen bestemmingsverkeer, een basisschool op loopafstand en een zonnige tuin op het zuidoosten. Met vier slaapkamers, twee dakkapellen, zonnepanelen en twee airco’s heb je hier een huis dat praktisch voelt en leeft. Nieuwsgierig. Kom dan snel kijken.
LEVEN
Dit is een huis waar je je snel thuis voelt. De woonkamer is licht en prettig ingedeeld. Er is genoeg ruimte voor een fijne zithoek en een grote eettafel. Een plek voor drukke gezinsdagen, rustige avonden en gezellige etentjes met vrienden. De woning is modern afgewerkt en goed onderhouden. Dankzij de volledige isolatie, het HR glas en de vloerverwarming in de woonkamer en badkamer woon je hier comfortabel in elk seizoen. De airco’s zorgen op warme dagen voor extra comfort.
KOKEN
De keuken is modern, praktisch en klaar voor dagelijks gebruik. De ATAG kookplaatcombinatie maakt koken hier net even leuker. Of je nu snel iets op tafel zet of uitgebreid kookt, je hebt hier een fijne plek waar alles binnen handbereik is.
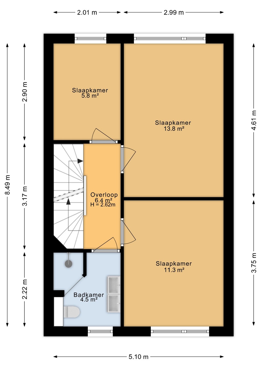
SLAPEN
Met vier slaapkamers heb je hier alle ruimte. Voor een gezin, thuiswerken, logees of een hobbykamer. De twee dakkapellen zorgen boven voor extra licht en veel meer bruikbare ruimte. Een echte plus is de zolderkamer met dakkapel. Dat is zo’n plek met sfeer. Je ligt hier straks in bed en kijkt in de avond naar de sterren. Juist dat maakt deze woning net even anders.
BUITENLEVEN
De achtertuin op het zuidoosten is een groot pluspunt. Hier zit je al snel lekker in de zon met een kop koffie of een goed glas aan het einde van de dag. De tuin is praktisch van formaat, heeft een achterom en een vrijstaande houten berging. Handig voor fietsen, spullen en alles wat je wilt opbergen.
OMGEVING
Hernen is een fijn dorp voor wie rustig wil wonen. De buurt is jong en kindvriendelijk en door het bestemmingsverkeer kunnen kinderen hier veilig buiten spelen. De basisschool ligt op loopafstand en in het dorp worden leuke activiteiten voor kinderen georganiseerd. Ook de ligging richting uitvalswegen is prettig. Zo woon je rustig, maar ben je toch snel onderweg.
SAMENGEVAT
Deze woning combineert ruimte, comfort en een fijne sfeer. Je krijgt hier een modern huis met vier slaapkamers, een zonnige tuin, zonnepanelen, airco’s en extra ruimte door de dakkapellen. Een instapklaar gezinshuis op een rustige plek in Hernen. Plan snel een bezichtiging en ervaar zelf hoe fijn je hier woont.