Beschrijving
Plan zelf online een bezichtiging! Kijk op mijn website bij de woning of vraag via Funda een bezichtiging aan.
Ben je op zoek naar een heerlijk, instapklaar familiehuis op een rustige locatie? Dan is Fossa 6 in Ewijk mogelijk wat je zoekt. Deze hoekwoning uit 2010, gelegen in een ruim opgezette nieuwbouwwijk, biedt je alles wat je nodig hebt: fijne ruimtes, goede afwerking en een energiezuinig label A. Met grote slaapkamers, een verzorgde tuin en een moderne keuken is dit de ideale plek voor een gezin dat wil genieten van rust en gemak. Kom snel langs en ervaar zelf de charme van dit huis!
BEGANE GROND
Stap binnen in de lichte en ruime woonkamer, waar je meteen het gevoel van thuiskomen ervaart. De keuken is van alle gemakken voorzien, denk aan een Quooker en A-merk apparatuur, en biedt genoeg ruimte om samen te koken en te genieten van een maaltijd. Dankzij de vloerverwarming op de begane grond is het hier altijd comfortabel warm. De glazen wand in de gang, geplaatst in 2020, zorgt voor een stijlvolle uitstraling en veel natuurlijk licht, ook in de hal.
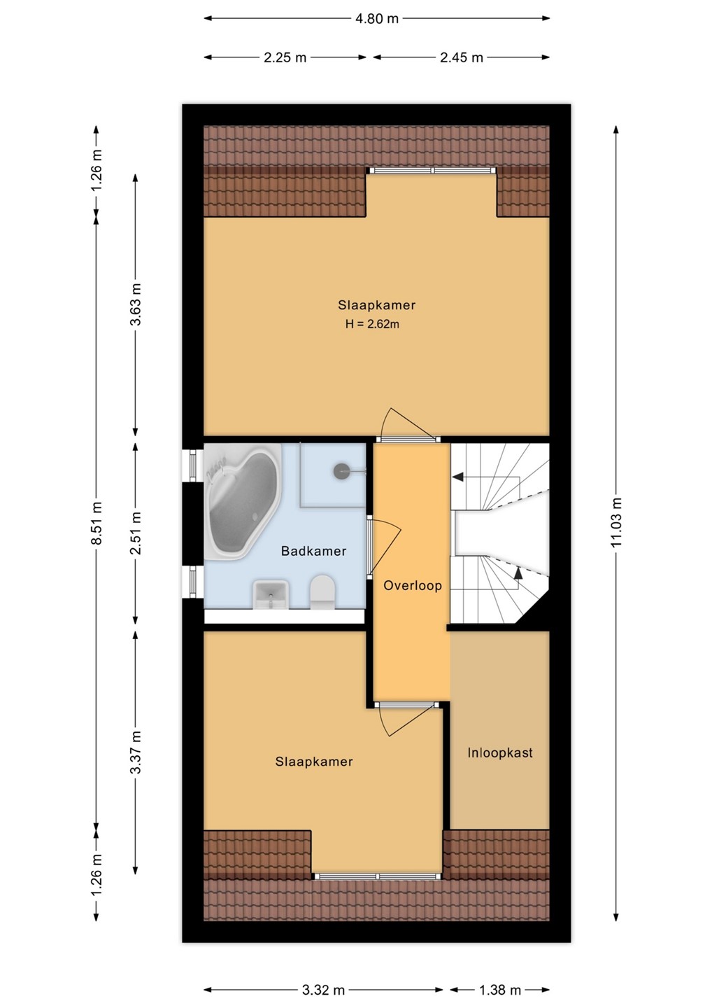
EERSTE VERDIEPING
Op de eerste verdieping vind je twee grote slaapkamers. Perfect voor een gezin of voor het creëren van een thuiswerkplek. De kamers zijn licht en bieden voldoende ruimte voor een groot bed. De badkamer is fijne grote ruimte, voorzien van een ligbad, douche, toilet en wastafel. Daarnaast is er op de overloop een handige inloopkast voor al je kleding en accessoires.
TWEEDE VERDIEPING
De tweede verdieping biedt nog meer mogelijkheden. Deze ruimte kan worden gebruikt als extra slaapkamer, hobbyruimte of opslag. En er is plek voor de wasmachine en droger. Met een beetje creativiteit maak je hier eenvoudig een plek die aan al je wensen voldoet. Voor nog meer opslagruimte is er een bergzolder gemaakt, bereikbaar met een vlizotrap.
TUIN
De tuin is in 2025 volledig vernieuwd en biedt nu nog meer comfort en privacy. Er is er genoeg ruimte voor een eettafel en een loungeset. Daarnaast is er plek genoeg voor een speelhoek voor de kinderen of een gezellige barbecue met vrienden. De overkapping is ook recent geplaatst. Hier zit je dankzij de glaswand en houtkachel het hele jaar door comfortabel. En overkapping voor fietsen en tuinspullen en de poort aan de zijkant van het huis maakt het geheel compleet.
OMGEVING
Fossa 6 ligt in een rustige woonwijk in Ewijk, aan een doodlopende straat met vrije ligging en dichtbij het water. De ligging is ideaal: dichtbij de snelweg en openbaar vervoer, waardoor je snel in de stad bent. De supermarkt AH is op korte afstand, slechts 6 minuten lopen. Scholen en andere winkels zijn dichtbij, wat het leven hier extra gemakkelijk maakt. Ewijk zelf biedt een fijne mix van rust en levendigheid, met mooie natuur en voldoende voorzieningen. En met veel zon in de tuin geniet je hier optimaal van het buitenleven.
Ben je nieuwsgierig geworden naar Fossa 6 in Ewijk? Plan dan snel een bezichtiging.