Beschrijving
Plan zelf online een bezichtiging! Kijk op mijn website of vraag via Funda een bezichtiging aan.
Een huis dat je hart verovert, dat is Poldervaart 37 in Beuningen. Deze ruime twee-onder-een-kapwoning heeft alles wat je zoekt: een rustige ligging met vrijheid aan de voorzijde, een lichte- en open sfeer en een fantastische tuin aan het water. Met 24 zonnepanelen en een energielabel A is deze woning niet alleen comfortabel, maar ook duurzaam. Daarnaast is het huis heel goed onderhouden. De locatie is perfect voor water- en natuurliefhebbers, met het Natuurgebied de Beuningse Plas om de hoek. Kom snel een kijkje nemen en ontdek wat dit huis te bieden heeft!
BEGANE GROND
Stap binnen in een zee van licht en ruimte. De woonkamer is een plek waar je je meteen thuis voelt, met grote ramen die uitzicht bieden op de net vernieuwde achtertuin en de voortuin. De nette keuken is praktisch ingericht en voorzien van inbouwapparatuur, ideaal voor gezellige etentjes met vrienden en familie. Dankzij de vloerverwarming op de begane grond is het hier altijd aangenaam warm, zelfs op de koudste dagen. Via een gang, mét bergruimte, loop je de inpandige garage in, die volop bergruimte biedt en de mogelijkheid om je auto droog te parkeren.
EERSTE VERDIEPING
Op de eerste verdieping vind je twee ruime slaapkamers en een kleinere, stuk voor stuk licht en comfortabel. De master bedroom heeft een inloopkast. De grote badkamer is een luxe plek met een ligbad, inloopdouche en dubbele wastafel. Hier begin je de dag fris en ontspannen. Het toilet is apart van de badkamer. De kamers zijn perfect voor een gezin, met voldoende ruimte voor iedereen om zich terug te trekken.
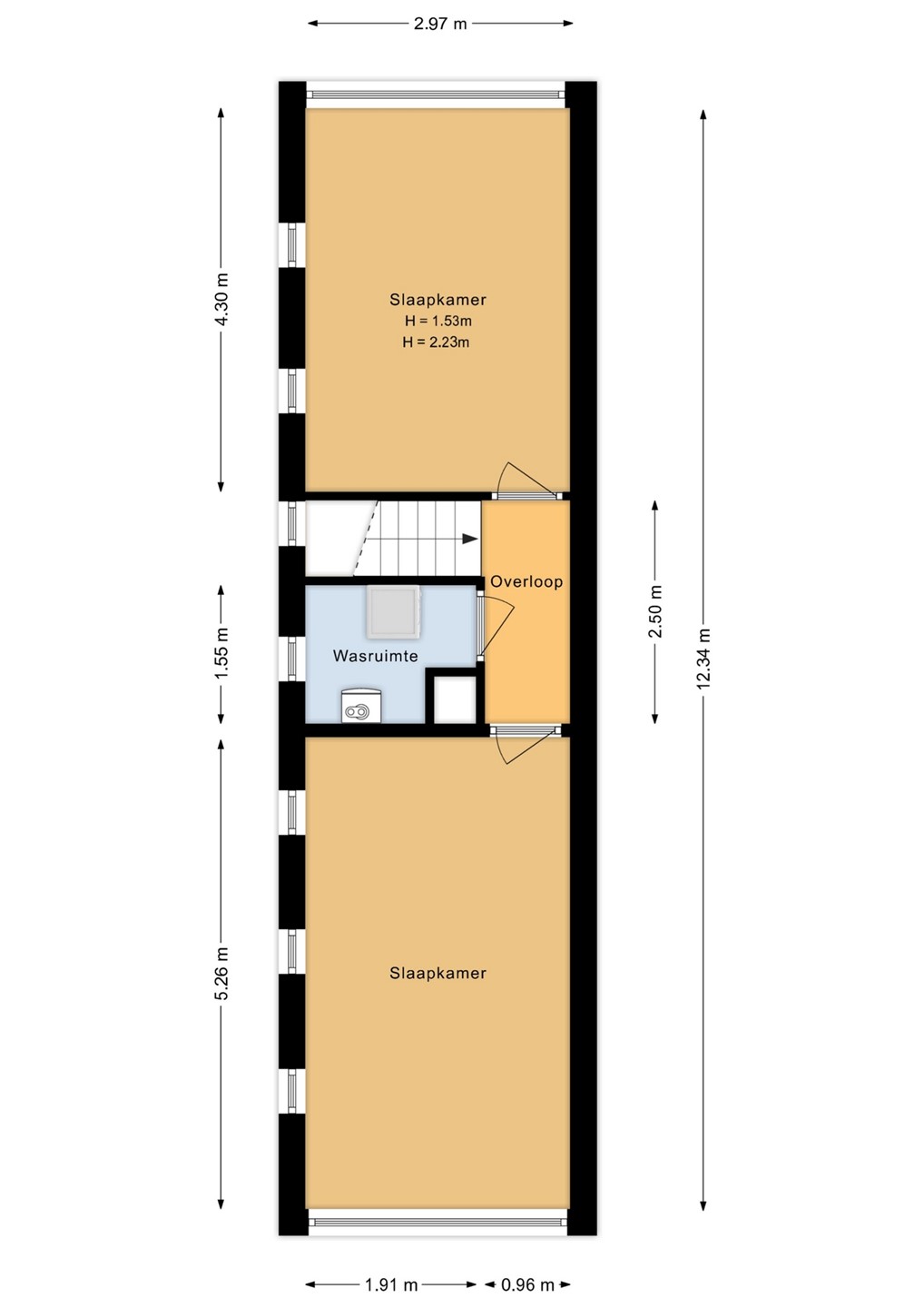
TWEEDE VERDIEPING
De tweede verdieping biedt nog eens twee grote slaapkamers, ideaal voor een groter gezin of als werkruimte. De kamers zijn licht en ruim, met genoeg mogelijkheden om ze naar eigen wens in te richten. Op deze verdieping is ook de wasruimte.
BUITENLEVEN
De tuin is een absolute troef van deze woning. Met een ligging aan het water en een recent vernieuwde waterkant, is het hier genieten van rust en natuur. De schuur biedt extra opslag of kan dienen als hobbyruimte. Onder de schuur is een bootkelder gemaakt. De dubbele oprit en ruime parkeergelegenheid maken het plaatje compleet. Of je nu van tuinieren houdt, graag buiten eet, of gewoon wilt ontspannen, deze tuin biedt het allemaal.
OMGEVING
Beuningen is een fijne plek om te wonen, met alle voorzieningen binnen handbereik. Scholen, winkels en openbaar vervoer zijn dichtbij, en de snelweg is snel bereikbaar voor een vlotte verbinding naar de stad. Het Natuurgebied de Beuningse Plas biedt volop mogelijkheden voor watersport en wandelingen. Hier woon je in een rustige, nette wijk met een vriendelijke sfeer.
Ben je nieuwsgierig geworden naar Poldervaart 37? Plan een bezichtiging en ontdek zelf wat deze woning te bieden heeft. Je bent van harte welkom!