Beschrijving
Bezichtiging? Vraag via Funda of mijn site een bezichtiging aan en plan zelf een afspraak.
LICHT HUIS IN BEUNINGEN
Stel je voor: een ruime hoekwoning aan de Lavendelstraat 15 in Beuningen, waar comfort, veel licht en ruimte samenkomen. Deze woning biedt alles wat je zoekt: een royale tuin die groter is dan de meeste in de buurt, een gezellige overkapping die als tweede woonkamer fungeert en een eigen oprit met carport. Met een energielabel A dankzij de goede isolatie en zonnepanelen, is dit huis niet alleen comfortabel, maar ook duurzaam. De kunststof kozijnen zorgen ervoor dat je weinig omkijken hebt naar onderhoud, zodat je meer tijd overhoudt voor de leuke dingen in het leven. Kom snel kijken en ontdek jouw nieuwe thuis!
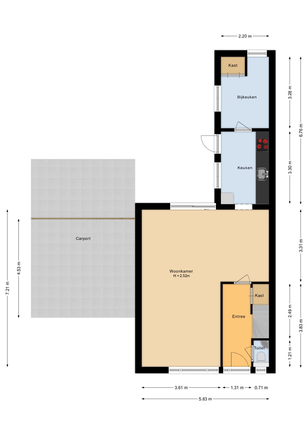
BEGANE GROND
Bij binnenkomst in dit huis word je verwelkomd door een lichte en ruime L-woonkamer. De grote ramen zorgen voor een overvloed aan natuurlijk licht, waardoor elke dag zonnig aanvoelt. De aangebouwde keuken is praktisch en functioneel, perfect voor het bereiden van heerlijke maaltijden. Vanuit de keuken kom je in de handige bijkeuken, waar je plek vind voor de wasmachine. Door de bijkeuken kom je in de verzorgde achtertuin, waar je kunt genieten van de rust en privacy. De tuin is een ware verlenging van de leefruimte, ideaal voor zomerse barbecues of een ontspannen middag in de zon.
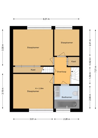
EERSTE VERDIEPING
Op de eerste verdieping vind je drie comfortabele slaapkamers. De kamers zijn ruim en licht, ideaal voor een gezin of om een thuiswerkplek te creëren. De badkamer is functioneel en biedt alles wat je nodig hebt om de dag fris te beginnen.
ZOLDER
De zolder is een veelzijdige ruimte die je naar eigen wens kunt inrichten. Of je nu behoefte hebt aan een extra slaapkamer, een hobbyruimte of een thuiskantoor, de mogelijkheden zijn eindeloos. De zolder is gemakkelijk toegankelijk en biedt veel opbergruimte, perfect voor het opbergen van seizoensgebonden spullen.
OMGEVING
De Lavendelstraat 15 ligt in een rustige en gezellige woonwijk in Beuningen. Op loopafstand vind je het centrum van Beuningen en bijvoorbeeld sportvoorzieningen. De buurt is kindvriendelijk en biedt veel speelruimte voor de kleintjes. Bovendien ben je binnen enkele minuten op de snelweg, waardoor je gemakkelijk naar omliggende steden kunt reizen. Beuningen zelf biedt een scala aan voorzieningen, van sportfaciliteiten tot culturele evenementen, waardoor er altijd iets te beleven valt.
KOM KIJKEN
Ben je nieuwsgierig geworden naar deze unieke woning aan de Lavendelstraat 15? Plan dan snel een bezichtiging en laat je verrassen door de ruimte en mogelijkheden die dit huis te bieden heeft!