Beschrijving
Bezichtiging? Vraag via Funda of mijn site een bezichtiging aan en plan zelf een afspraak.
DROOMHUIS AAN DE BURGEMEESTER VERSTRAATENLAAN
Stel je voor: een vrijstaand huis waar je elke dag kunt genieten van veel leefruimte, daglicht en wooncomfort. Deze woning aan de Burgemeester Verstraatenlaan 18-A in Beuningen, combineert de charme van bouwjaar 1963 met de luxe van nu. Tussen 2015 en 2018 is het huis namelijk volledig gerenoveerd. De grote leefkeuken in de lichte aanbouw, met indrukwekkende lichtstraat, is dé plek waar je met vrienden en familie samenkomt. De tuin op het zuiden biedt veel privacy en vormt een heerlijke plek om te ontspannen. Kom zelf de sfeer proeven en ontdek wat dit huis voor jou kan betekenen. Maak snel een afspraak voor een bezichtiging!
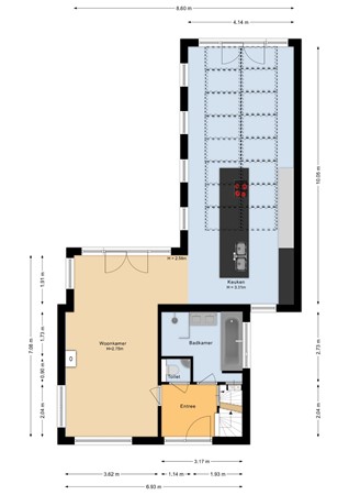
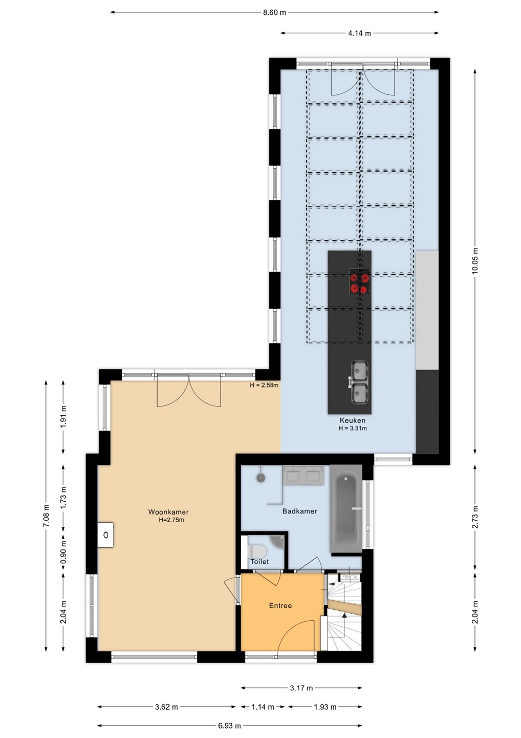
BEGANE GROND
Vanuit de hal kom je in de knusse woonkamer, die aan de achterzijde is uitgebouwd.
De grote glazen geeft prachtig zicht op de achtertuin en laat veel daglicht binnen. Een pelletkachel voegt een gezellige warmte toe aan de woonkamer, ideaal voor de koudere maanden. In de ruime leefkeuken nodigt het indrukwekkende kookeiland van vier meter uit tot culinaire avonturen. De aanbouw wordt gekenmerkt door een zes meter lange lichtstraat, waardoor je 's avonds zelfs de sterren kunt bewonderen. Om boven ruimte te behouden voor meerdere slaapkamers, is op de begane grond een badkamer gerealiseerd. Deze moderne ruimte is voorzien van een ligbad, een inloopdouche en dubbele wastafel. Vloerverwarming in de badkamer, het toilet en de aanbouw zorgt voor lekker warme voeten bij de start van je dag.
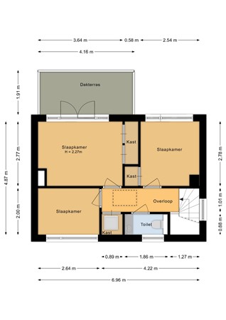
EERSTE VERDIEPING
Op de eerste verdieping vind je drie fijne slaapkamers, waarvan de ramen zijn voorzien van rolluiken. Bovendien is er airconditioning, die de verdieping koelt. Hier kun je genieten van een goede nachtrust, ongeacht het seizoen.
ZOLDER
De zolder biedt veel opslagruimte, perfect voor al je seizoensgebonden spullen en meer. Of misschien zie je hier wel de mogelijkheid voor een extra hobbyruimte? De mogelijkheden zijn er.
BUITENRUIMTE
De diepe en brede tuin op het zuiden is een plek van rust en privacy. Met weinig inkijk van de buren kun je hier ongestoord genieten van de zon. Het tuinkantoor biedt een ideale werkplek, los van het huis, zodat je in alle rust kunt werken. En dan is er nog de stenen schuur, die met wat liefde omgetoverd kan worden tot een prachtig tuinhuis of een plek voor al je klussen.
OMGEVING
Gelegen aan een rustige weg in een gezellige woonwijk, letterlijk op steenworp afstand van het centrum, vind je hier het beste van twee werelden: rust en nabijheid van voorzieningen. Op loopafstand vind je verschillende winkels en het gezellige centrum van Beuningen. Ook scholen en openbaar vervoer zijn dichtbij, wat het een ideale plek maakt voor gezinnen. Dit huis aan de Burgemeester Verstraatenlaan 18-A is meer dan alleen een woning; het is een plek waar je je thuis voelt. Kom langs en ervaar het zelf!