| Prijs | € 538.000,- k.k. |
| Type object | Woonhuis, eengezinswoning, geschakelde twee onder een kap woning |
| Perceeloppervlakte | 264 m² |
| Woonoppervlakte | 151 m² |
| Aanvaarding | In overleg |
| Status | Nieuw in verkoop |
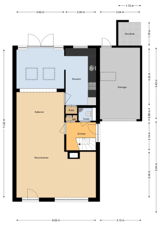
Bezichtiging? Vraag via Funda of mijn site een bezichtiging aan en plan zelf een afspraak. Stap binnen in de Kraaijenberg 7311 in Wijchen en ontdek een woning die ruimte, comfort en een ideale ligging combineert. Deze geschakelde twee-onder-een-kapwoning is perfect voor gezinnen die op zoek zijn naar een fijne plek om te wonen. Met vier slaapkamers, een ruime uitgebouwde woonkamer en een verzorgde tuin, biedt dit huis alles wat je nodig hebt. Kom een kijkje nemen en ervaar zelf de mogelijkheden! BEGANE GROND Bij binnenkomst valt meteen de ruime opzet op. De uitgebouwde woonkamer heeft een gezellige zithoek en een eetgedeelte. Het zijn fijne plekken om te ontspannen en te tafelen. De grote ramen aan de voorzijde zorgen voor veel natuurlijk licht en de houtkachel geeft een gezellige sfeer. Aan de achterzijde is de halfopen keuken, die praktisch is ingericht en voorzien van inbouwapparatuur. Hier kook je met gemak de lekkerste maaltijden. Vanuit de uitbouw stap je de tuin in. EERSTE VERDIEPING Op de eerste verdieping vind je drie ruime slaapkamers. Ideaal voor een groot gezin of als je extra ruimte nodig hebt voor een thuiswerkplek. De badkamer is een echte luxe met een ligbad, dubbele wastafel en een aparte douche. Hier begin je de dag fris en ontspannen. Ook de wasmachine heeft hier een plekje, in een aparte ruimte. TWEEDE VERDIEPING De tweede verdieping biedt nog meer mogelijkheden. Hier is de vierde, bijzonder ruime slaapkamer, die is voorzien van een dakkapel. Daarnaast is er een bergruimte met de CV-opstelling. BUITENRUIMTE De tuin is een fijne plek om te vertoeven. Of je nu groene vingers hebt of gewoon wilt ontspannen. Het tuinhuis biedt extra opbergruimte of kan dienen als hobbyruimte. De garage met carport zorgt ervoor dat je auto altijd droog staat. De garagezolder kan worden omgebouwd tot een extra kamer, ideaal voor gasten of als hobbyruimte. Een deel van de voortuin is in bruikleen van de gemeente. OMGEVING De woning ligt in een rustige, lommerrijke en kindvriendelijke buurt. Je hebt alle voorzieningen binnen handbereik. Een basisschool, winkels en openbaar vervoer zijn dichtbij. Bovendien ben je zo op de snelweg, ideaal voor forenzen. Voor een wandeling in de natuur loop je zo naar het Leurse Bos. Benieuwd naar de Kraaijenberg 7311? Maak een afspraak en kom langs!
| Referentienummer | 00220 |
| Vraagprijs | € 538.000,- k.k. |
| Status | Nieuw in verkoop |
| Aanvaarding | In overleg |
| Aangeboden sinds | Maandag 1 december 2025 |
| Type object | Woonhuis, eengezinswoning, geschakelde twee onder een kap woning |
| Soort bouw | Bestaande bouw |
| Bouwperiode | 1977 |
| Dakbedekking | Dakpannen |
| Type dak | Zadeldak |
| Isolatievormen | Dakisolatie Gedeeltelijk dubbel glas Muurisolatie Vloerisolatie |
| Perceeloppervlakte | 264 m² |
| Woonoppervlakte | 151 m² |
| Inhoud | 615 m³ |
| Oppervlakte overige inpandige ruimten | 21 m² |
| Oppervlakte externe bergruimte | 5 m² |
| Oppervlakte gebouwgebonden buitenruimte | 25 m² |
| Aantal bouwlagen | 3 |
| Aantal kamers | 5 (waarvan 4 slaapkamers) |
| Aantal badkamers | 1 (en 1 apart toilet) |
| Ligging | Aan rustige weg Beschutte ligging Dichtbij openbaar vervoer In woonwijk Nabij school Nabij snelweg |
| Type | Achtertuin |
| Hoofdtuin | Ja |
| Oriëntering | Noorden |
| Staat | Normaal |
| Tuin 2 - Type | Achtertuin |
| Tuin 2 - Oriëntering | Zuiden |
| Tuin 2 - Staat | Goed onderhouden |
| Energielabel | C |
| CV ketel | Nefit Proline |
| Warmtebron | Gas |
| Bouwjaar | 2015 |
| Combiketel | Ja |
| Eigendom | Eigendom |
| Warm water | CV-ketel |
| Verwarmingssysteem | Centrale verwarming Houtkachel |
| Badkamervoorzieningen | Douche Dubbele wastafel Ligbad Toilet |
| Parkeergelegenheid | Garage met carport |
| Heeft een rookkanaal | Ja |
| Glasvezelaansluiting aanwezig | Ja |
| Tuin aanwezig | Ja |
| Heeft een garage | Ja |
| Heeft schuur/berging | Ja |
| Heeft een dakraam | Ja |
| Heeft zonnepanelen | Ja |
| Kadastrale aanduiding | Wijchen L 1449 |
| Perceeloppervlakte | 264 m² |
| Omvang | Geheel perceel |
| Eigendomsituatie | Eigen grond |