Beschrijving

Op vrijdag 20 maart a.s. houd ik open huis. Je kunt dan tussen 17.00u-18.00u binnenlopen zonder afspraak om een kijkje te nemen. Kun je niet? Maak dan gewoon een afspraak voor een bezichtiging. 

Ontsnap aan de drukte en geniet van rust en ruimte op Klapstraat 35 in Wijchen. Deze vrijstaande semi-bungalow biedt je de unieke kans om gelijkvloers te wonen in een groene en rustige omgeving. Met drie slaapkamers en twee badkamers is er genoeg ruimte voor een gezin. De gezellige tuin met meerdere zitjes en een houtkachel in de woonkamer maken dit huis tot een warme en uitnodigende plek. En dat alles aan de bekende dierenweide. Kom langs en ervaar zelf de rust en het comfort van deze prachtige woning.

BEGANE GROND
Op de begane grond vind je alles wat je nodig hebt voor comfortabel wonen. De ruime woonkamer heeft 2 zitgedeeltes en een eetkamer. Aan de voorzijde is een schuifpui naar een terras, waar je heerlijk in de ochtendzon kunt ontbijten. De tuingerichte woonkamer aan de achterzijde heeft een houtkachel en is de perfecte plek om te ontspannen na een lange dag. De grote ramen laten veel natuurlijk licht binnen en bieden een prachtig uitzicht op de tuin. De keuken is van alle gemakken voorzien en biedt genoeg ruimte om uitgebreid te koken. Daarnaast vind op de begane grond de hoofdslaapkamer met een badkamer, wat gelijkvloers wonen mogelijk maakt. Ideaal voor wie op zoek is naar gemak en comfort. 

EERSTE VERDIEPING
Op de eerste verdieping bevinden zich twee slaapkamers. De kamers zijn licht en ruim, met voldoende ruimte voor al je spullen. Deze verdieping biedt genoeg plek voor een groot gezin of voor gasten die komen logeren. De badkamer voor deze slaapkamers is op de begane grond en voorzien van een groot ligbad, toilet en een inloopdouche. 

ACHTERBOUW
De achterbouw op de begane grond biedt nog meer mogelijkheden. Met een extra kamer die kan dienen als hobbyruimte of kantoor heb je alle ruimte om je eigen stempel op het huis te drukken. In deze ruimte is een keuken gemaakt. 

BUITENRUIMTE
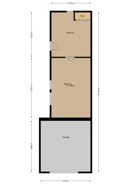
De tuin bij het huis is een echte eyecatcher. Met gezellige zitjes is het de perfecte plek om te genieten van mooie zomerdagen. De vrijstaande garage met 2 bergingen bieden veel extra opslagruimte. Parkeren doe je gemakkelijk op eigen terrein, wat zorgt voor extra gemak en veiligheid.

OMGEVING
Klapstraat 35 ligt aan de rand van een rustige woonwijk in Wijchen, dicht bij alle voorzieningen die je nodig hebt. Scholen, winkels en openbaar vervoer zijn allemaal in de buurt. Bovendien ben je binnen enkele minuten op de snelweg, waardoor je snel en gemakkelijk naar andere steden kunt reizen. En vergeet niet de dierenweide, een geliefde plek in Wijchen waar je heerlijk kunt kijken naar de hertjes en andere dieren en genieten van het buitenleven.

Ben je nieuwsgierig geworden naar deze unieke woning? Neem dan contact met ons op voor een bezichtiging en ontdek zelf de charme en mogelijkheden van Klapstraat 35 in Wijchen.

Kenmerken