Beschrijving

Heerlijk ruim en comfortabel wonen, dat kan aan de Treubstraat 156! Dit fijne appartement beschikt over 2 woonlagen en is voorzien van o.a. een lichte woonkamer, keuken, badkamer en maar liefst 3 slaapkamers en een heerlijk balkon. Dé perfecte plek om thuis te komen en te ontspannen.

Het appartement is ideaal gelegen boven winkelcentrum Hatert, voorzien van o.a.: Jumbo, Lidl, etc. Een auto is makkelijk en gratis te parkeren op het grote parkeerterrein naast het appartementencomplex. Daarnaast is het appartement gunstig gelegen ten opzichte van het openbaar vervoer en diverse uitvalswegen. Het bruisende stadscentrum van Nijmegen is ook eenvoudig te bereiken. Tot slot is er in de directe omgeving ruim voldoende 'groen' te vinden, te weten: Goffertpark, Hatertse Vennen en Berendonk.

Indeling:
Begane grond: gemeenschappelijke entree, brievenbussen, intercom, lift, trappenhuis.

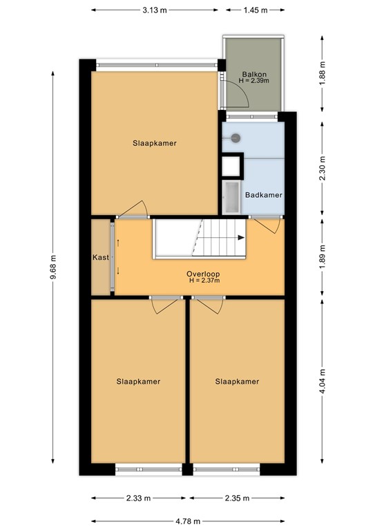
Tweede verdieping:
Het appartement heeft een prettige woonkamer met aangrenzend een riant balkon op het zuidwesten. Het vrije uitzicht is prachtig. De keuken is gesitueerd aan de voorkant en beschikt over een berging en provisieruimte. Op de tweede woonlaag zijn drie volwaardige slaapkamers te vinden. Eén van de kamers heeft een balkon. De nette badkamer is voorzien van een douche en wastafelmeubel. Hier bevindt zich ook de boiler.

Kelder: eigen berging, gemeenschappelijke fietsenkelder.

Kenmerken:
- Woonoppervlakte: ca. 89 m²
- Gebouwgebonden buitenruimte: ca. 11 m²
- Bouwjaar: 1967
- Airco en zonnescherm 
- Mooi uitzicht aan beide kanten 
- Actieve VVE 
- Maandelijkse bijdrage aan de VvE bedraagt thans ca. € 394,60 per maand (incl. waterverbruik en € 100,- voorschot stookkosten).
- Energielabel: C

Ben je ook enthousiast geworden en zie jij jezelf hier helemaal wonen? Neem dan gerust contact met ons op voor het plannen van een bezichtiging.

Kenmerken