Beschrijving

Bezichtiging? Vraag via Funda of mijn site een bezichtiging aan en plan zelf een afspraak. 

HUIS MET POTENTIEEL

Ben je op zoek naar een kluswoning met karakter en mogelijkheden? Dan is Hatertseweg 207 in Nijmegen precies wat je zoekt. Deze charmante eengezinswoning uit 1913 biedt je de kans om een eigen stempel te drukken op een stukje geschiedenis. Met een ruime achtertuin op het zuidoosten, geniet je hier van de zon op elk moment van de dag. Achterin de tuin staat een bijgebouw wat je kunt gebruiken als hobbyruimte of bijvoorbeeld kantoor aan huis. De woning heeft een woonoppervlakte van 86 m² en biedt voldoende ruimte voor een gezin. Kom snel een kijkje nemen en ontdek zelf de mogelijkheden! 

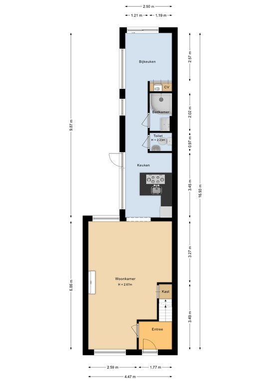
BEGANE GROND
De woonkamer biedt een gezellige plek om te ontspannen na een drukke dag. Je vind hier de deur naar de praktische kelder. De keuken is aan de achterzijde in de aanbouw. De inrichting is aan vernieuwing toe. Ideaal om je eigen droomkeuken te realiseren dus! Zie je het al voor je? Achter de keuken zijn een eenvoudige badkamer, toiletruimte en een soort bijkeuken met de CV-opstelling. 

EERSTE VERDIEPING
Op de eerste verdieping vind je drie slaapkamers. De kamers hebben hoge plafonds en zijn groot genoeg om goede slaapkamers van te maken. Met wat liefde en aandacht maak je van deze ruimtes persoonlijke en comfortabele plekken. 

BUITENRUIMTE
De achtertuin is heel diep. Met een oppervlakte van 213 m² kun je hier een prachtige tuin aanleggen. Of je nu groene vingers hebt of liever een onderhoudsarme tuin wilt, de mogelijkheden zijn eindeloos. Middenin de tuin staat een berging en achterin een bijgebouw dat als hobbyruimte of kantoor bij huis kan fungeren. Er zijn daar voorzieningen aanwezig. 

OMGEVING
Hatertseweg 207 ligt in de levendige wijk St. Anna in Nijmegen. De ligging aan een drukke weg betekent dat je alle voorzieningen binnen handbereik hebt. Scholen, openbaar vervoer en winkels zijn dichtbij, wat het dagelijkse leven een stuk makkelijker maakt. Nijmegen zelf is een bruisende stad met een rijke historie en een divers aanbod aan cultuur en recreatie. Van gezellige terrasjes tot prachtige natuurgebieden, je vindt het hier allemaal. De nabije ligging van openbaar vervoer, scholen, ziekenhuizen, universiteit en winkels maken het leven nét wat makkelijker. 

Ben je nieuwsgierig geworden naar de mogelijkheden van deze woning? Kom dan snel langs voor een bezichtiging en laat je verrassen door de charme en potentie van Hatertseweg 207 in Nijmegen. Bel ons voor een afspraak en wie weet maak jij van dit huis jouw droomhuis!

Kenmerken