Beschrijving

Ben je op zoek naar een ruim en comfortabel huis in een rustige omgeving, dan is deze geschakelde twee-onder-een-kapwoning precies wat je zoekt. Gelegen aan een rustige weg en grenzend aan een park, biedt dit huis een perfecte combinatie van rust en ruimte. De volledige isolatie en dubbele beglazing zorgen ervoor dat het huis energiezuinig is. Met een woonoppervlakte van 134 m², een grote tuin en een eigen oprit met garage, is dit de ideale plek voor een gezin dat op zoek is naar een nieuwe start! 

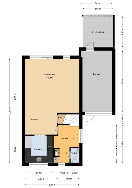
BEGANE GROND
Stap binnen in een lichte en ruime woonkamer waar de vernieuwde vloer zorgt voor een moderne en warme uitstraling. De open indeling maakt het de perfecte plek om te ontspannen of gasten te ontvangen. De halfopen keuken is van alle gemakken voorzien en biedt voldoende ruimte om je culinaire vaardigheden te tonen. Vanuit de woonkamer heb je via een schuifpui directe toegang tot de achtertuin, waar je kunt genieten van een kop koffie in de ochtendzon of een barbecue met vrienden en familie. De tuin is heel diep en verzorgd en biedt genoeg ruimte voor kinderen om te spelen of om gewoon te ontspannen na een lange dag. Aan de achterzijde ligt het huis vrij. 

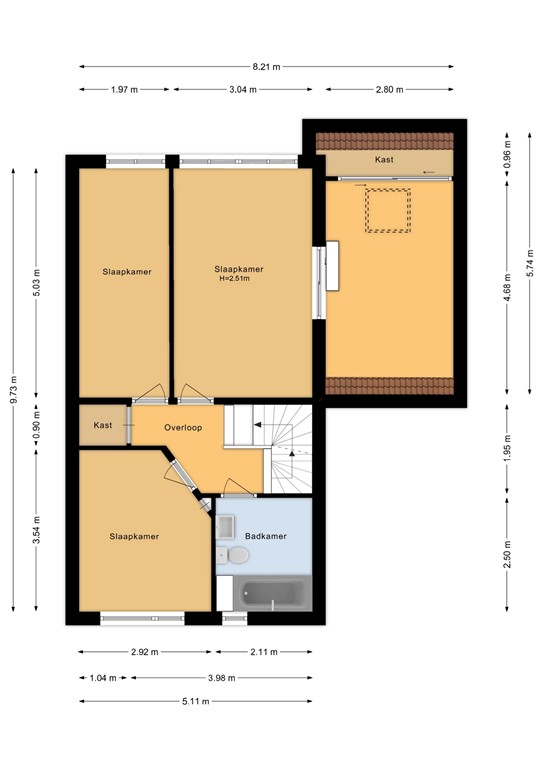
EERSTE VERDIEPING
Op de eerste verdieping vind je drie ruime slaapkamers. De grote dakkapel aan de achterzijde zorgt voor extra ruimte en een prachtig uitzicht op het omliggende groen. Een van de slaapkamers heeft een handige extra kamer, boven de garage gelegen. De nette badkamer is praktisch ingericht en voorzien van alle nodige faciliteiten. 

TWEEDE VERDIEPING
De tweede verdieping biedt een vierde slaapkamer, ideaal als logeerkamer of thuiskantoor. Deze verdieping is ook voorzien van veel opbergruimte, zodat je al je spullen netjes kunt opbergen. 

OMGEVING
De woning is centraal gelegen, met alle voorzieningen binnen handbereik. Op loopafstand vind je een speeltuin, ideaal voor kinderen om veilig te spelen. De buurt is groen en rustig, perfect voor een ontspannen wandeling of een fietstocht. Bovendien zijn scholen, winkels en openbaar vervoer gemakkelijk bereikbaar, waardoor je alles wat je nodig hebt binnen handbereik hebt.

Ben je nieuwsgierig geworden naar deze woning? Maak snel een afspraak voor een bezichtiging en ontdek zelf de vele mogelijkheden die dit huis te bieden heeft.

Kenmerken