Beschrijving

EEN HISTORISCH JUWEEL IN HET HART VAN GRAVE

Stap binnen in de Boreel de Mauregnaultstraat 26 en laat je verrassen door de charme van deze karakteristieke eindwoning. Dit Rijksmonument uit 1901 biedt niet alleen een prachtige voorgevel, maar ook verrassend veel ruimte en mogelijkheden. Gelegen in het historische centrum van Grave, geniet je hier van de rust terwijl je toch alle voorzieningen binnen handbereik hebt. Kom langs en ervaar zelf de unieke sfeer van dit huis!

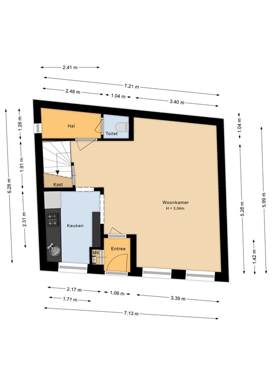
BEGANE GROND
Bij binnenkomst word je direct gegrepen door de hoge balkenplafonds die een gevoel van ruimte creëren. De woonkamer is sfeervol en lekker ruim, perfect voor gezellige avonden met vrienden en familie. De modern landelijke keuken biedt alle moderne gemakken en is de ideale plek om je culinaire vaardigheden te tonen. De combinatie van authentieke elementen en hedendaags comfort maakt deze ruimte tot een heerlijke plek om te vertoeven.

EERSTE VERDIEPING
Op de eerste verdieping vind je twee ruime slaapkamers, elk met hun eigen unieke charme. De nieuwe badkamer is voorzien van een inloopdouche, een badkamermeubel en vloerverwarming, wat zorgt voor extra comfort op koude ochtenden. Ook is er een apart toilet, eveneens met vloerverwarming. De kamers bieden volop mogelijkheden om naar eigen wens in te richten, of je nu een thuiskantoor, hobbyruimte of extra slaapkamer nodig hebt.

ZOLDER
De zolder is een echte blikvanger met zijn prachtige oude balken. Deze ruimte kan naar eigen inzicht worden ingericht; denk aan extra slaapkamers, een atelier of een speelkamer voor de kinderen. De mogelijkheden zijn eindeloos en bieden je de kans om deze woning helemaal naar jouw hand te zetten.

GARAGE
De woning beschikt over een garage met nieuwe deuren en verzwaarde balken, ideaal voor het stallen van je auto of als extra bergruimte. Parkeren kan ook met een (goedkope) parkeervergunning in de directe omgeving.

DE OMGEVING
Grave is een stad vol historie en charme. Het centrum biedt talloze winkels, gezellige terrassen en restaurants. Voor natuurliefhebbers zijn er prachtige wandel- en fietsroutes langs de Maas. Daarnaast zijn er uitstekende verbindingen met het openbaar vervoer, waardoor je binnen no-time in omliggende steden bent. Alle voorzieningen, zoals scholen, supermarkten en sportfaciliteiten, zijn binnen handbereik.

KOM LANGS
Ben je op zoek naar een woning met karakter en historie, maar met alle moderne gemakken? Dan is Boreel de Mauregnaultstraat 26 in Grave de perfecte plek voor jou. Plan een bezichtiging en ontdek zelf de charme van deze unieke woning!

Kenmerken