Beschrijving

BEZICHTIGEN? Plan zelf online een bezichtiging! Kijk op mijn website (bij de pagina van de woning) of vraag via Funda een bezichtiging aan.

RUIMTE EN LICHT IN EEN MODERNE JAS
Op zoek naar een huis waar je direct het gevoel hebt dat alles klopt? Schutsboom 20 in Escharen biedt je precies dat. Hier woon je in een jonge, energiezuinige twee-onder-een-kapwoning met een goede afwerking, een fijne tuin én een grote garage. Alles is ruim, licht en comfortabel. Kom snel kijken en ervaar zelf hoe goed het hier wonen is.

LEVEN
Je stapt binnen in een praktisch ingedeelde hal en loopt zo door naar de woonkamer. Hier heb je alle ruimte om te leven zoals jij wilt. De hoge plafonds en grote ramen zorgen voor een open gevoel. De vloerverwarming op de benedenverdieping houdt je voeten het hele jaar door lekker warm. Zet in de woonkeuken de openslaande naar de tuin open en haal buiten naar binnen. De mooie vloer maakt het plaatje compleet. Of je nu met vrienden een spelletje speelt of lekker op de bank ploft met een goed boek, hier voelt het altijd goed.

KOKEN
De keuken is het hart van het huis. Luxe, modern, mét kookeiland en van alle gemakken voorzien. Je hebt hier alle ruimte om uitgebreid te koken, te bakken of gewoon snel een kop koffie te zetten. Dankzij de open indeling blijf je altijd in contact met de rest van het gezin of je gasten. De keuken grenst direct aan de tuin, dus op een zonnige dag zet je de deuren open en dek je de tafel buiten. 

SLAPEN
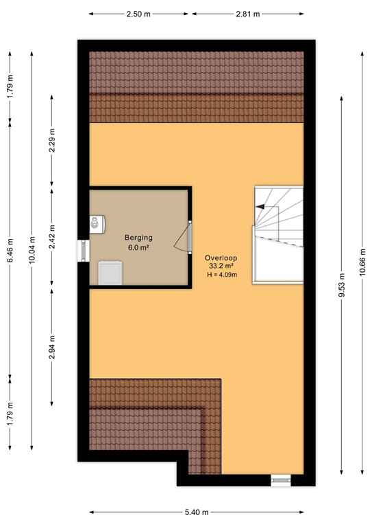
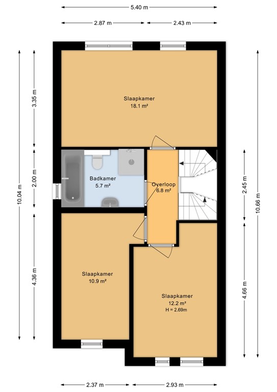
Boven vind je drie ruime slaapkamers. Licht, rustig en makkelijk in te richten. Hier word je wakker met het gevoel dat je goed geslapen hebt. De kamers zijn groot genoeg voor een tweepersoonsbed, een bureau of een flinke kledingkast. Op zolder is er nog een grote open ruimte die je helemaal naar eigen wens kunt indelen. Denk aan (een) extra slaapkamer(s), een werkplek of een speelruimte voor de kinderen.

BUITENLEVEN
De tuin is een echte verlenging van je woonkamer. Groot genoeg voor een lange eettafel, een loungeset en een trampoline voor de kinderen. Het luxe zonnescherm van Harol (maar liefst 4 meter uitval!) zorgt dat je altijd een plekje in de schaduw hebt. De tuin is netjes aangelegd en makkelijk te onderhouden. Via de achterom ben je zo weer op straat. Aan de voorkant heb je ook nog een verzorgde voortuin, waar je lekker in de zon kunt zitten. Parkeren doe je gewoon op je eigen terrein of in de grote inpandige garage met elektrische deur.

OMGEVING
Schutsboom 20 ligt in een rustige, jonge wijk in Escharen. Hier woon je lekker rustig, maar toch dichtbij alles wat je nodig hebt. De basisschool is om de hoek, ideaal voor gezinnen met kinderen. Dichtbij, in Grave, vind je een supermarkt, bakker en andere winkels voor de dagelijkse boodschappen. Wil je er even uit? De natuur rondom Escharen is prachtig, perfect voor een wandeling of fietstocht. Ook Grave en Nijmegen zijn snel te bereiken voor een dagje stad of een avondje uit.

ENERGIE EN COMFORT
Dit huis is gebouwd in 2020 en helemaal klaar voor de toekomst. Energielabel A, volledig geïsoleerd en voorzien van HR-glas. De vloerverwarming beneden zorgt voor extra comfort. Je hoeft je dus geen zorgen te maken over hoge energierekeningen.

KOM KIJKEN
Ben je benieuwd hoe het voelt om hier te wonen? Maak snel een afspraak en kom kijken op Schutsboom 20 in Escharen. Hier vind je ruimte en comfort in een rustige buurt.

Kenmerken