| Prijs | € 528.000,- k.k. |
| Type object | Woonhuis, eengezinswoning, twee onder een kap woning |
| Perceeloppervlakte | 450 m² |
| Woonoppervlakte | 164 m² |
| Aanvaarding | In overleg |
| Status | Verkocht |
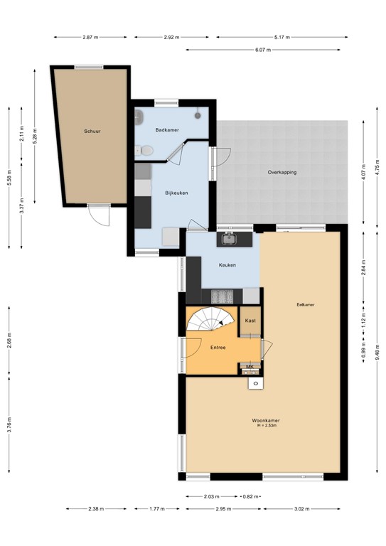
GROOT HUIS MET SCHUUR Stel je voor: een degelijk gebouwd huis met een zee aan ruimte, praktisch ingericht en gelegen in het rustige Escharen. Het is een plek waar je je direct thuis voelt. Met vier slaapkamers, een grote tuin met een flinke schuur, zonnepanelen en een handige overkapping aan huis, biedt deze twee-onder-een-kapwoning alles wat je nodig hebt voor comfortabel wonen en bijvoorbeeld werken aan huis. En dat allemaal in een relaxte en kindvriendelijke buurt, vlakbij de voorzieningen van Grave. Kom zelf kijken en ervaar de rust en ruimte die dit huis te bieden heeft! BEGANE GROND Bij binnenkomst word je verwelkomd in een ruime hal die toegang biedt tot de lichte en grote L-woonkamer. Hier kun je heerlijk ontspannen bij de houtkachel, terwijl de airconditioning zorgt voor een aangename temperatuur in de zomer. De halfopen keuken is praktisch ingericht en voorzien van alle moderne gemakken. De begane grond biedt ook een bijkeuken met plek voor de wasmachine en droger en een tweede badkamer, ideaal voor gasten of een druk gezin. Vanuit de eetkamer stap je via de schuifpui zo de grote achtertuin in, met een overkapping waar je het hele jaar door van het buitenleven kunt genieten. EERSTE VERDIEPING Op de eerste verdieping vind je drie slaapkamers, 2 ruim en een kleinere, elk met voldoende ruimte voor een (tweepersoons)bed en een kledingkast. De badkamer op deze verdieping is modern en voorzien van een douche, ligbad, dubbele wastafel in een handig meubel en een toilet. De kamers zijn licht en bieden een fijn uitzicht op de rustige omgeving. TWEEDE VERDIEPING De tweede verdieping herbergt de vierde slaapkamer, een ideale plek voor een tiener of als thuiskantoor. Daarnaast is er voldoende bergruimte voor al je spullen en je vind hier de CV ketel, achter een wand. BUITENRUIMTE De achtertuin is een waar genot voor tuinliefhebbers. Met een oppervlakte van 242 m² is er genoeg ruimte voor kinderen om te spelen, voor een moestuin of om gewoon te relaxen. De grote houten schuur biedt talloze mogelijkheden, van kantoor aan huis, tot hobbyruimte of werkplaats. De oprit aan de voorzijde biedt plaats aan twee auto's, wat parkeren op eigen terrein mogelijk maakt. Naast het huis is een handige overdekte achterom, waar je je fietsen neer kunt zetten. OMGEVING Escharen is een charmant dorpje met een gezellige en kindvriendelijke sfeer. Je woont hier naast een groene buitengebied, ideaal om lekker te wandelen of fietsen. Op loopafstand vind je een basisschool, kinderopvang en BSO en op korte afstand is het historische stadje Grave, waar alle benodigde voorzieningen zijn, zoals winkels, scholen en sportfaciliteiten. De ligging aan een rustige weg in een woonwijk zorgt voor een vredige woonomgeving, terwijl je toch alles binnen handbereik hebt. Dit huis aan de Graafschedijk 35 in Escharen is een plek waar je je direct thuis voelt. Kom langs en ontdek zelf de ruimte, het comfort en de mogelijkheden die deze woning te bieden heeft. Maak snel een afspraak voor een bezichtiging!
| Referentienummer | 00218 |
| Vraagprijs | € 528.000,- k.k. |
| Status | Verkocht |
| Aanvaarding | In overleg |
| Aangeboden sinds | Donderdag 30 oktober 2025 |
| Laatste wijziging | Dinsdag 25 november 2025 |
| Type object | Woonhuis, eengezinswoning, twee onder een kap woning |
| Soort bouw | Bestaande bouw |
| Bouwperiode | 1980 |
| Dakbedekking | Dakpannen |
| Type dak | Zadeldak |
| Isolatievormen | Dakisolatie Dubbel glas Muurisolatie |
| Perceeloppervlakte | 450 m² |
| Woonoppervlakte | 164 m² |
| Inhoud | 624 m³ |
| Oppervlakte overige inpandige ruimten | 14 m² |
| Oppervlakte externe bergruimte | 44 m² |
| Oppervlakte gebouwgebonden buitenruimte | 26 m² |
| Aantal bouwlagen | 3 |
| Aantal kamers | 5 (waarvan 4 slaapkamers) |
| Aantal badkamers | 2 |
| Ligging | Aan rustige weg In woonwijk Nabij school |
| Type | Achtertuin |
| Hoofdtuin | Ja |
| Oriëntering | West |
| Heeft een achterom | Ja |
| Staat | Normaal |
| Tuin 2 - Type | Achtertuin |
| Tuin 2 - Oriëntering | Oosten |
| Tuin 2 - Staat | Normaal |
| CV ketel | Remeha Avanta Ace 35c |
| Warmtebron | Gas |
| Bouwjaar | 2022 |
| Combiketel | Ja |
| Eigendom | Eigendom |
| Warm water | CV-ketel |
| Verwarmingssysteem | Airconditioning Centrale verwarming Houtkachel |
| Ventilatie methode | Natuurlijke ventilatie |
| Badkamervoorzieningen Badkamer 1 | Inloopdouche Toilet Wastafel |
| Badkamervoorzieningen Badkamer 2 | Douche Dubbele wastafel Ligbad Toilet Wastafelmeubel |
| Heeft airco | Ja |
| Heeft een balkon | Ja |
| Tuin aanwezig | Ja |
| Beschikt over een internetverbinding | Ja |
| Heeft schuur/berging | Ja |
| Heeft een dakraam | Ja |
| Heeft een schuifpui | Ja |
| Kadastrale aanduiding | Grave E 1345 |
| Perceeloppervlakte | 92 m² |
| Omvang | Geheel perceel |
| Eigendomsituatie | Eigen grond |
| Kadastrale aanduiding | Grave E 1344 |
| Perceeloppervlakte | 301 m² |
| Omvang | Geheel perceel |
| Eigendomsituatie | Eigen grond |
| Kadastrale aanduiding | Grave E 1571 |
| Perceeloppervlakte | 57 m² |
| Omvang | Geheel perceel |
| Eigendomsituatie | Eigen grond |