Beschrijving

Ik kan geen nieuwe bezichtigingen meer inplannen, het spijt me. 

Ben jij op zoek naar een unieke woonboerderij met karakter en ruimte om je heen? Dan is deze woning uit 1926 mogelijk wat je zoekt! Gelegen buiten de bebouwde kom, biedt dit huis aan de Van Heemstraweg 12 in Boven-Leeuwen je een vrij uitzicht over de weilanden en een flinke dosis privacy. Met een riante tuin en mogelijkheden om je eigen stempel op het interieur te drukken, is dit de perfecte plek voor wie houdt van  ruimte en het buitenleven. Kom snel een kijkje nemen en ervaar het zelf!

BEGANE GROND
De grote hal is recent aangebouwd. Je vind er de toiletruimte en bijkeuken. Stap binnen in de ruime en lichte woonkamer, waar de karakteristieke balken in het zicht direct de aandacht trekken. Deze ruimte ademt sfeer en gezelligheid. Denk je eens in: ontspannen met een goed boek terwijl je uitkijkt over de uitgestrekte weilanden. De open keuken is ruim opgezet en biedt alle mogelijkheden om jouw culinaire creaties tot leven te brengen. Of je nu een eenvoudige maaltijd bereidt of een uitgebreid diner voor vrienden en familie, hier kan het allemaal. Vanuit de keuken kun je heel ver kijken over de weilanden. 

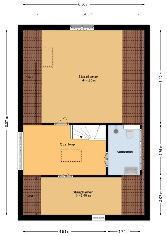
EERSTE VERDIEPING
Op de eerste verdieping bevinden zich de twee royale slaapkamers. De bruine balken in de hoofdslaapkamer zijn een echte eye-catcher. De kamer heeft een heel hoog plafond en openslaande tuindeuren met een Frans balkon die zorgen voor een prachtig uitzicht en veel natuurlijk licht. De tweede slaapkamer is ideaal als kinder- of logeerkamer, maar biedt ook de mogelijkheid om omgetoverd te worden tot een kantoor of hobbyruimte. En met een beetje creativiteit is er in de grote slaapkamer zelfs ruimte voor een extra slaapkamer.

BUITENLEVEN
De tuin is een waar paradijs voor liefhebbers van het buitenleven. Met 1480 m² aan perceeloppervlakte is er genoeg ruimte voor een moestuin, speeltoestellen voor de kids of een gezellige barbecuehoek. Feestjes in de tuin zijn hier een must, in overleg met de buren. Er is voldoende parkeergelegenheid op eigen terrein. De vrijstaande stenen garage biedt extra bergruimte voor fietsen, tuingereedschap of zelfs een kleine werkplaats.

OMGEVING
Deze woonboerderij ligt op een ideale locatie met snelle verbindingen naar steden als Tiel, Rotterdam, Arnhem, 's Hertogenbosch en Nijmegen. Voorzieningen zoals winkels, een sportschool, een zwembad en scholen zijn binnen handbereik in de nabijgelegen dorpen Beneden Leeuwen en Druten. Bovendien ben je binnen no-time op de snelweg, waardoor je zowel de rust van het platteland als de levendigheid van de stad binnen handbereik hebt.

Ben jij klaar om deze bijzondere woonboerderij te ontdekken? Maak snel een afspraak voor een bezichtiging en laat je verrassen door de charme en mogelijkheden van deze unieke woning aan de Van Heemstraweg in Boven-Leeuwen.

Kenmerken