Beschrijving

HEERLIJKE WONING IN EEN LEVENDIGE WIJK

Dit karakteristieke appartement uit 1910 biedt alles wat je zoekt. Met zijn hoge plafonds en speelse indeling voelt het ruim aan en dankzij de vele ramen geniet je de hele dag van natuurlijk licht. De ligging in een levendige wijk met creatieve winkels, gezellige horeca en culturele hotspots maakt het plaatje compleet. Dit is niet zomaar een huis, maar een plek waar je je meteen thuis voelt. Kom langs en ervaar het zelf!

BEGANE GROND
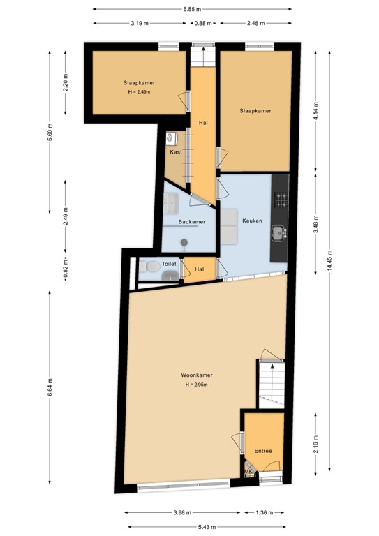
Bij binnenkomst word je via de hal, verwelkomd door een ruime woonkamer. De ruimte is een heerlijke plek om te ontspannen, met hoge plafonds en grote ramen die zorgen voor een zee van licht. De open keuken is netjes en praktisch ingericht, ideaal voor gezellige etentjes met vrienden of familie. Geen eigen tuin? Geen probleem! Het zitje aan de voorzijde biedt een fijne plek om buiten te zitten en te genieten van de levendige sfeer van de wijk.

Aan de achterkant van de woning is een gang die je toegang geeft tot de slaapkamers en de moderne badkamer. De nieuwe badkamer (2024) is een plaatje, voorzien van een meubel  en inloopdouche. Hier begin je je dag fris en uitgerust. De slaapkamers zijn ruim genoeg voor een comfortabel bed en een werkplek, ideaal voor thuiswerkers. De speelse indeling zorgt ervoor dat je je hier meteen thuis voelt.

SOUTERRAIN
Het souterrain is een echte verrassing. Met zijn constante temperatuur is het een fijne ruimte om het hele jaar door te gebruiken. Of je nu op zoek bent naar een extra slaapkamer, opslagruimte, een hobbykamer of een plek voor een thuisbioscoop, de mogelijkheden zijn er.

OMGEVING
Gelegen op slechts vijf minuten fietsen van de binnenstad, biedt dit appartement de perfecte combinatie van rust en levendigheid. De wijk bruist van de creativiteit met ateliers en leuke winkels. Voor de dagelijkse boodschappen zijn er diverse supermarkten en speciaalzaken in de buurt. Ook scholen, kinderopvang en openbaar vervoer zijn binnen handbereik. De centrale ligging maakt het een ideale uitvalsbasis voor werk en ontspanning.

Ben je nieuwsgierig geworden naar dit unieke appartement aan de rand van de binnenstad? Neem dan snel contact met ons op voor een bezichtiging. Dit is je kans om te wonen in een karakteristiek huis op een toplocatie!

Kenmerken